Komfortowe, klimatyzowane 4 pokoje, garaż

Lokal komercyjny na wynajem
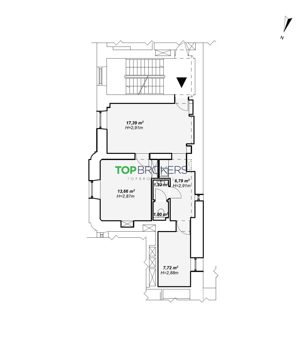
3 900,00 PLN , Pow. 48 m2
Drukuj ofertę
Drukuj ofertę
Typ nieruchomości:
Komercyjny
Powierzchnia:
48 m2
Typ transakcji:
wynajem
Liczba pokoi:
5
Lokalizacja:
Warszawa Śródmieście Południowe
Piętro:
3 na 4
Numer oferty:
TB#596430
Cena za m2:
81,25 PLN
Do wynajęcia biuro 48 m2, piętro 3/4 z windą, Śródmieście Południowe.

Ścisłe centrum, doskonałe na kancelarię, siedzibę firmy, dla firmy księgowej, dla programistów, na biuro projektowe, punkt obsługi klientów itp. Dostępne bez mebli ruchomych.

Cena: 3900 zł netto + 850 zł koszty eksploatacyjne i media wg zużycia + 100 zł netto za szyld/reklamę (za sztukę). Wymagana kaucja. Właściciel wystawia faktury VAT.

Świetna lokalizacja, prestiżowy adres, 10 min. pieszo do Pałacu Kultury i Nauki. Znakomity dostęp do komunikacji miejskiej, 5 min. pieszo do przystanków autobusowych, 7 min. pieszo do przystanków tramwajowych, 7 min. pieszo do metra Centrum (M1). W okolicy liczne sklepy, bary, restauracje oraz punkty usługowe. Nieopodal popularne CH Złote Tarasy.

Lokal to:
* 3 pokoje/gabinety;
* osobna kuchnia;
* toaleta.

Ogrzewanie jest elektryczne, jednak dzięki korzystnie wynegocjowanym stawkom koszty eksploatacji pozostają niewygórowane - rozliczane według faktycznego zużycia energii.

Oferta biura nieruchomości, prowizja płatna dopiero po podpisaniu umowy najmu. Więcej propozycji na naszej stronie topbrokers(kropka)pl
Nieprawidłowy adres E-mail