Przestronne 2 pokoje do remontu koło Morskiego Oka

Mieszkanie na sprzedaż
829 000,00 PLN , Pow. 65 m2
Drukuj ofertę
Drukuj ofertę
Typ nieruchomości:
Mieszkanie
Powierzchnia:
65 m2
Typ transakcji:
sprzedaż
Liczba pokoi:
2
Lokalizacja:
Warszawa Mokotów Sielce , Turecka
Rok budowy:
1971
Piętro:
4 na 10
Numer oferty:
TB#572245
Cena za m2:
12 753,85 PLN
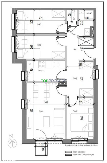
Na sprzedaż 2-pokojowe mieszkanie 65m2, piętro 4/10 z windą, w budynku z 1971 r. Mokotów, Sielce. 

Do remontu, jest możliwość zaaranżowania łącznie 3-4 pokoi. Super dla rodziny lub pary, także inwestycyjnie pod wynajem. Umeblowanie do uzgodnienia.

Mieszkanie to: 
* salon z wyjściem na balkon;
* sypialnia;
* osobna kuchnia z oknem: lodówka, płyta grzewcza, zlew dwukomorowy, szafki;
* łazienka: prysznic;
* toaleta: wc;
* balkon.

Dodatkowo piwnica 3m2.

Mieszkanie jest bardzo dobrze doświetlone, duża liczba okien, ekspozycja południowo-wschodnia, brak bliskiej zabudowy. Na podłogach drewniany parkiet.

Czynsz z zaliczkami na media 1060 zł. Ogrzewanie miejskie. 

Zadbany budynek, są 2 windy, teren zamknięty.

Wygodna lokalizacja, blisko liczne sklepy i punkty usługowe, piekarnia, apteka, kwiaciarnia, restauracja, bar mleczny, drogeria, supermarket. W pieszej odległości żłobek, przedszkole, szkoła podstawowa, liceum. Bardzo dobry dostęp do komunikacji miejskiej, w pobliżu przystanki autobusowe i tramwajowe (nowa linia łącząca centrum z Wilanowem). Tuż obok popularny park Morskie Oko, jedynie 9 min. pieszo do parku Łazienki Królewskie.

Mieszkanie to lokal mieszkalny stanowiący odrębną nieruchomość, jest założona księga wieczysta, grunty uregulowane (własność).Brak jakichkolwiek obciążeń w księdze wieczystej do transakcji, własność 2 osób, możliwa szybka sprzedaż. Mieszkanie jest dostępne za gotówkę lub na kredyt, który bezpłatnie możemy uzyskać.

Zapraszam do obejrzenia na miejscu, zadzwoń od razu i umów się na spotkanie! Oferta biura nieruchomości, więcej propozycji na naszej stronie topbrokers(kropka)pl

Nieprawidłowy adres E-mail