Przestronne, stylowe 3 pokoje

Mieszkanie na sprzedaż
1 299 000,00 PLN , Pow. 76,69 m2
Drukuj ofertę
Drukuj ofertę
Typ nieruchomości:
Mieszkanie
Powierzchnia:
76,69 m2
Typ transakcji:
sprzedaż
Liczba pokoi:
3
Lokalizacja:
Warszawa Włochy Stare Włochy , Krańcowa
Rok budowy:
2014
Piętro:
2 na 7
Numer oferty:
TB#265120
Cena za m2:
16 938,32 PLN
Na sprzedaż 3-pokojowe mieszkanie 76,69m2, piętro 2/7 z windą, w budynku z 2014 r. Stare Włochy.

Idealne dla rodziny lub pary. Meble ruchome do uzgodnienia.

Mieszkanie to:
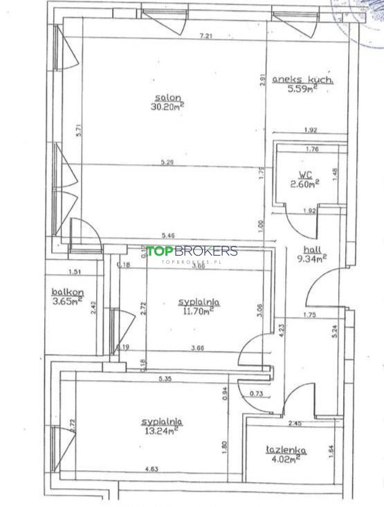
* salon 30,2m2 z otwartą kuchnią i wyjściem na loggię: kanapa, fotele, stół, krzesła, stolik kawowy, kredens, szafa, komoda, TV;
* otwarta kuchnia: lodówka, kuchenka indukcyjna, piekarnik, okap, stół, krzesła;
* sypialnia 11,7 m2 z wyjściem na loggię: podwójne łóżko, szafa;
* pokój/gabinet 13,24 m2: rozkładana kanapa, biurko, półki;
* łazienka 4,02 m2: prysznic, umywalka, lustro, pralka, suszarka, wc, szafka;
* toaleta 2,06 m2: wc, umywalka, lustro;
* przedpokój 9,34m2: duża szafa w zabudowie;
* loggia 3,65 m2.

Dodatkowo 3 komórki lokatorskie, w cenie.

Czynsz 1000 zł.

Wygodna lokalizacja, blisko sklepy, punkty usługowe, przedszkole, szkoła. Wygodny dostęp do komunikacji miejskiej, tuż obok przystanki autobusowe, nieopodal wjazd na Al. Jerozolimskie, obwodnicę oraz wylotówki z miasta. Niedaleko przyjemny park Cietrzewia, gdzie są stawy, fontanny, siłownia, ścianka wspinaczkowa, hamaki, plac zabaw.

Mieszkanie to lokal mieszkalny stanowiący odrębną nieruchomość, jest założona księga wieczysta, grunty uregulowane (własność). Brak jakichkolwiek obciążeń w księdze wieczystej do transakcji, tylko jeden właściciel, możliwa szybka sprzedaż. Mieszkanie jest dostępne za gotówkę lub na kredyt, który bezpłatnie możemy uzyskać.

Zapraszam do obejrzenia na miejscu, zadzwoń od razu i umów się na spotkanie! Oferta biura nieruchomości, więcej propozycji na naszej stronie topbrokers(kropka)pl
Nieprawidłowy adres E-mail