Eleganckie i nowoczesne 3 pokoje, parking

Mieszkanie na sprzedaż
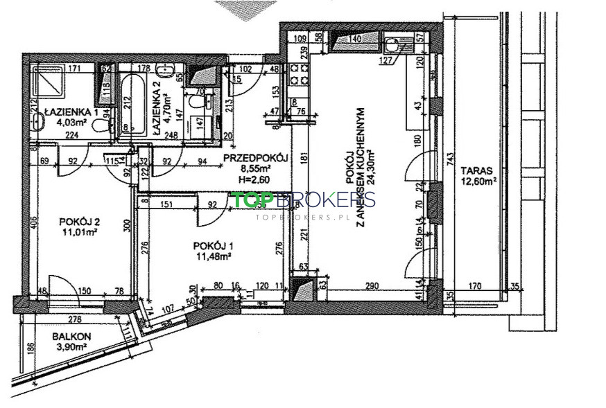
1 899 999,00 PLN , Pow. 64,07 m2
Drukuj ofertę
Drukuj ofertę
Typ nieruchomości:
Mieszkanie
Powierzchnia:
64,07 m2
Typ transakcji:
sprzedaż
Liczba pokoi:
3
Lokalizacja:
Warszawa Wola Czyste , Giełdowa
Rok budowy:
2015
Piętro:
8 na 8
Numer oferty:
TB#518698
Cena za m2:
29 655,05 PLN
Do kupienia 3-pokojowe mieszkanie 64,07 m2, piętro 8/8 z windą, w budynku z 2015 r. Wola, Czyste.

Elegancko wykończone, gotowe do wprowadzenia się, idealne dla rodziny lub inwestycyjnie z przeznaczeniem na wynajem.

Mieszkanie to:
* salon 24,3 m2 z aneksem kuchennym i wyjściem na balkon: narożnik, szafka RTV, marmurowy stolik kawowy, dywan, klimatyzacja;
* aneks kuchenny: duża lodówka, płyta indukcyjna, okap, piekarnik, zmywarka;
* sypialnia 11,01 m2 z garderobą i wyjściem na balkon: łóżko z materacem, marmurowa toaletka z oświetleniem, TV, klimatyzacja;
* sypialnia/gabinet 11,48m2: duża szafa, biurko, rozkładana sofa, klimatyzacja;
* łazienka 4,7m2: prysznic, lustro, wc;
* przedpokój 5,5m2: szafa wnękowa w zabudowie;
* 2 balkony 3,9 m2 i 12,6 m2.

Do mieszkania przynależą 2 miejsca postojowe w garażu podziemnym, dodatkowo płatne 70 000 zł oraz piwnica dodatkowo płatna 25 000 zł.

Czynsz administracyjny 1415 zł.

Mieszkanie po remoncie w 2022 roku, wykończenie z wykorzystaniem materiałów wysokiej jakości i z dbałością o każdy szczegół. Klimatyzacja w każdym pokoju, z indywidualnym sterowaniem. Nagłośnienie Sonos w całym mieszkaniu.

Zamknięte osiedle, z monitoringiem i całodobową ochroną. Na terenie plac zabaw, zewnętrzna siłownia, pięknie utrzymana zieleń, parking dla gości.

Świetna lokalizacja, blisko plac Europejski, biurowce Warsaw Spire, The Hub, Mennica Legacy Tower, Muzeum Powstania Warszawskiego, popularne miejsce spotkań Browary Warszawskie, liczne sklepy i punkty usługowe, przedszkole, szkoła podstawowa. Znakomity dostęp do komunikacji miejskiej, tylko 5 min pieszo do metra Rondo Daszyńskiego (M2), jedynie 450 m do przystanków autobusowych i tramwajowych z szybkim dojazdem do innych dzielnic.

Mieszkanie to lokal mieszkalny stanowiący odrębną nieruchomość, jest założona księga wieczysta, grunty uregulowane (własność). Brak jakichkolwiek obciążeń w księdze wieczystej do transakcji, garaż w odrębnej księdze wieczystej, tylko jeden właściciel, możliwa szybka sprzedaż. Mieszkanie jest dostępne za gotówkę lub na kredyt, który bezpłatnie pomożemy uzyskać.

Zapraszam do obejrzenia na miejscu, zadzwoń od razu i umów się na spotkanie! Oferta biura nieruchomości, więcej propozycji na naszej stronie topbrokers(kropka)pl
Nieprawidłowy adres E-mail